赌球规则-赌球有假吗_免费百家乐过滤_全讯网信息丨五湖四海 (中国)·官方网站

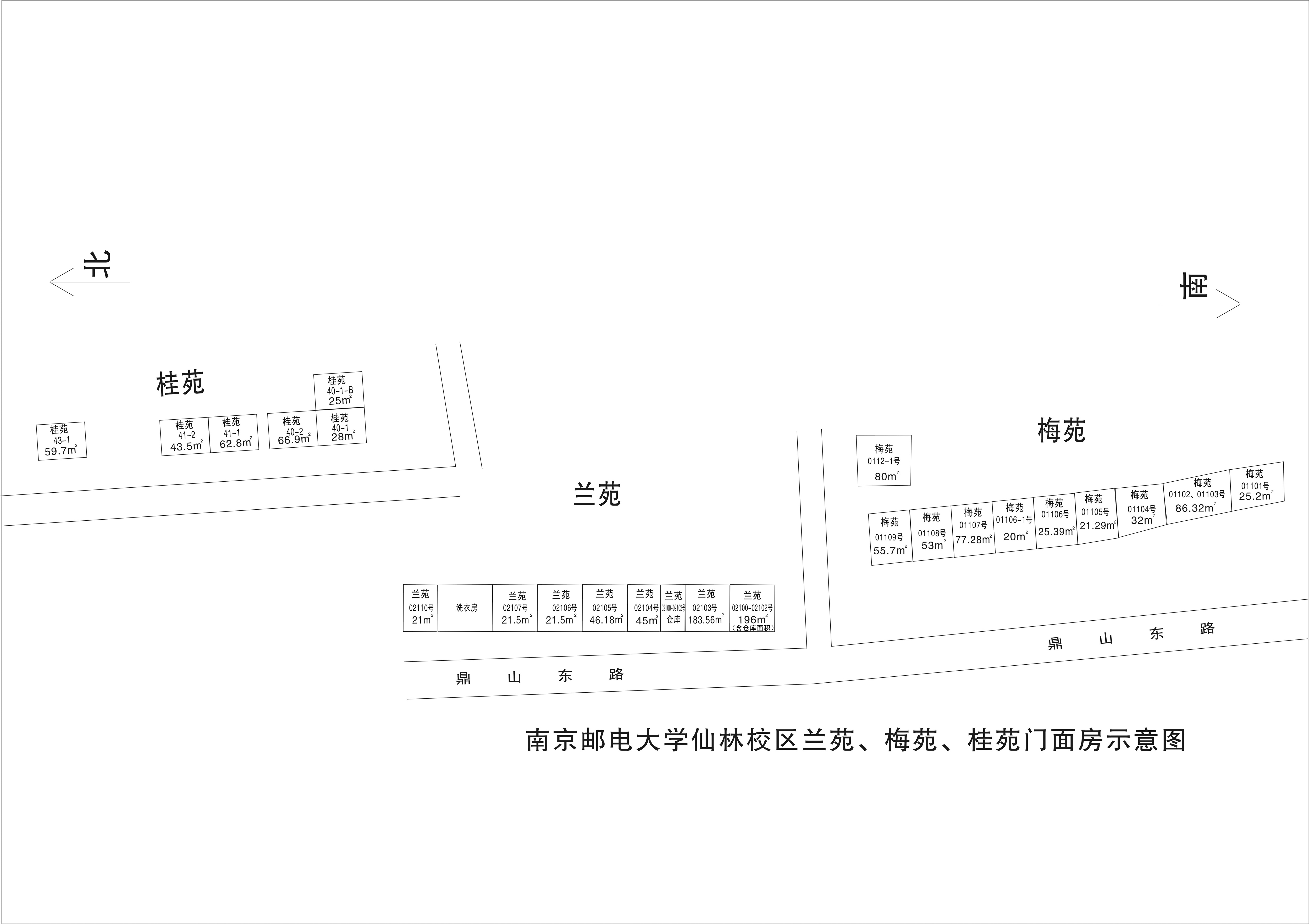
南京郵電大學仙林校區蘭苑02105號房屋租賃項目招租公告
發布時間: 2018-09-30 瀏覽次數: 502 文章來源: 財務處(采購招標管理辦公室)

受南京郵電大學資產經營有限責任公司委托,南京郵電大學采購招標管理辦公室就南京郵電大學仙林校區蘭苑02105號房屋租賃項目進行公開招租,歡迎符合相關條件的企業或自然人參與。

一、招租項目名稱及編號:南京郵電大學仙林校區蘭苑02105號房屋租賃項目(項目編號NYCG2018-F049

二、招租項目簡要說明

(一)南京郵電大學資產經營有限責任公司對位于南京郵電大學仙林校區蘭苑02105號房屋公開招標確定承租單位,為南京郵電大學師生及周邊居民提供文化、休閑、咨詢等配套服務。該房屋禁止經營餐飲、網吧、足療按摩、電子游戲機室、娛樂、設備加工、汽車美容等耗水、耗電量大或其他有污染和噪音的項目等以及招租人認為不宜從事的經營范圍。如經營范圍中涉及煙酒或其他特許經營的,必須提供相應的經營許可證。房屋面積46.18㎡。

(二)承租期限:本項目中標人承租期限為四年, 即自合同簽訂之日起共四年,合同一年一簽。

(三)投標基準底價:人民幣5.24萬元/年。

(四)本批次房屋租賃項目共39個(項目編號NYCG2018-F027NYCG2018-F065),投標人可以兼投。本批次房屋租賃項目開標、評標、定標按項目編號順序依次進行。

(五)押金:中標人在合同簽訂前五個工作日內須一次性向招租人繳清相當于兩個月租金額(精確到百位,百位以下四舍五入)作為押金。承租期滿,若無違規行為,在承租人辦理完退場手續后10日內,無息退還至中標人賬戶。

三、投標人資質要求

1、投標人必須是經國家有關部門批準,具有合法經營資質、符合《中華人民共和國政府采購法》第二十二條規定的獨立法人或經其授權的分支機構,或是具有完全民事行為能力的自然人,具有良好的社會信用;

2、投標人具有履行本項目所必需的設備和專業技術能力,提供書面聲明;

3、投標人參加本次采購活動前三年內在經營活動中沒有重大違法記錄,提供書面聲明;

4、投標人未被“信用中國”(www.creditchina.gov.cn)列入失信被執行人、重大稅收違法案件當事人名單,提供“信用中國”網站查詢的、自本招租公告發布之日至投標截止之日前的信用記錄截圖(截圖須加蓋公章);自然人須提供個人征信報告;

5、本項目不接受聯合體投標。

四、招租文件發布信息

招租文件發布及公告期限:自招租公告在“江蘇政府采購網”、“南京郵電大學”發布之日起5個工作日。如確定參加投標,請在“江蘇政府采購網”、“南京郵電大學”上免費下載,有關本次采購的事項若存在變動或修改,敬請及時關注“江蘇政府采購網”、“南京郵電大學”發布的信息更正公告。

五、投標文件接收信息

投標文件遞交時間:20181024日下午12:30-13:30

投標截止時間:20181024日下午13:30

投標文件遞交地點:南京市亞東新城區文苑路9號南京郵電大學行政南樓146

投標文件接收人:瞿老師

招租人不接受郵寄、快遞等投標,投標文件在投標截止時間后,一律不予退回。

六、開標有關信息

開標時間:20181024日下午13:30

開標地點:南京市亞東新城區文苑路9號南京郵電大學行政南樓146

七、繳納費用

投標人須在投標時繳納100元標書費,在遞交投標文件時繳納現金。

投標人須繳納4500元投標保證金,投標保證金應為在中國注冊的銀行出具的銀行本票(同城)、匯票(異地)或轉賬(請備注所投項目名稱,遞交投標文件時須現場出示轉賬憑證),不接受支票、現金交款及POS機刷卡。

戶名:南京郵電大學    賬號:4301011209001047531

開戶行:工行南京察哈爾路支行

八、本次招租聯系事項

招標聯系人:王老師    聯系電話:025-85866541    郵政編碼:210023

項目聯系人:葉老師    聯系電話:025-83535078

郵箱:zbb@njupt.edu.cn

南京郵電大學采購招標管理辦公室

F049南京郵電大學仙林校區蘭苑02105號房屋租賃項目招租文件.doc

附件:南京郵電大學仙林門面房地址示意圖.jpg  

仙林校區地址:南京市仙林大學城文苑路9號 郵編:210023 三牌樓校區地址:南京市新模范馬路66號 郵編:210003 鎖金村校區地址:南京市龍蟠路177號 郵編:210042

聯系電話:(86)-25-85866888 傳真:(86)-25-85866999 郵箱:njupt@njupt.edu.cn

蘇公網安備32011302320419號 |蘇ICP備11073489號-1

Copyright ? Nanjing University of Posts and Telecommunications All Rights Reserved

盐城百家乐的玩法技巧和规则| 威尼斯人娱乐网假吗| 百家乐官网关台| 百家乐官网最佳公式| 澳门百家乐官网骗人| 新朝代百家乐开户网站| 威尼斯人娱乐城003| 大发888 娱乐| 现金百家乐游戏| 百家乐官网公式书| 有钱人百家乐的玩法技巧和规则| 百家乐娱乐网真钱游戏| 捷豹百家乐的玩法技巧和规则 | 现金网制作| 宝龙百家乐官网娱乐城| 百家乐技巧之微笑心法| 赣州市| 网页百家乐游戏| 六合彩报| 百家乐智能软件| 永利百家乐官网娱乐场| 棋牌源码论坛| 百家乐官网赢一注| 星期八百家乐的玩法技巧和规则 | 缅甸百家乐官网的玩法技巧和规则 | 百家乐游戏怎么刷钱| 亚洲顶级赌场第一品牌| 真人百家乐技巧| 博彩百家乐官网网址| 百家乐赌机厂家| 鑫鼎百家乐官网娱乐城| 天长市| 大发888开户博盈国际| 百家乐官网不倒翁缺点| 狼2老虎机清零密码| 百家乐官网书| 大发888官方 黄埔| 百家乐代理商博彩e族| 新世纪百家乐官网娱乐城| 博狗百家乐官网真实| 香港六合彩图|